TERRAIN à bâtir

SAINT PATERNE RACAN – Terrains prêts à construire !

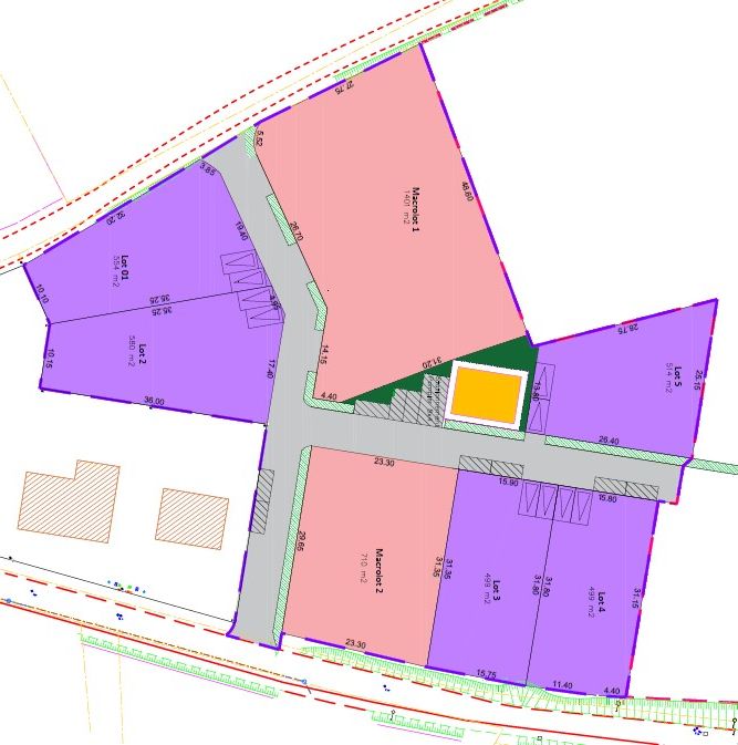
Surface

514 m2

Parcelles

Prix

33 700 €

Caractéristiques


EXCLUSIVITE Val Touraine Habitat ! Venez découvrir le lotissement " Les Etres - Tranche 2". Les terrains à bâtir, vendus bornés et viabilisés (branchements : eau potable, électricité, télécoms et réseaux d'assainissement eaux usées et eaux pluviales), sont prêts à construire avec le libre choix de votre constructeur. Les terrains sont éligibles au Prêt à Taux Zéro (PTZ) : profitez-en pour devenir propriétaire dès maintenant ! (*) Je suis à votre écoute pour étudier votre projet de construction, répondre à toutes vos questions et vous offrir un accompagnement personnalisé et confidentiel, pour donner vie à votre future maison en toute sérénité. --> Contactez-moi dès aujourd'hui pour recevoir le dossier complet du lotissement, les plans des lots et la grille des prix. Je serai ravi de vous rencontrer et de vous accompagner dans votre projet : • Miguel De FARIA : O6.59.67.86.89. (*) voir conditions auprès de votre conseiller

Contact par email

    Sujet

    Val Touraine Habitat collecte et traite des données personnelles vous concernant sur la base soit de l'exécution de ses intérêts légitimes pour la gestion des demandes issues du formulaire de contact, en tant que responsable de traitement. Les données sont à destination des équipes internes de Val Touraine Habitat. Vos demandes et les réponses apportées sont conservées 5 ans à compter du dernier contact. Conformément au Règlement (UE) 2016/679 relatif à la protection des données à caractère personnel, vous disposez des droits suivants sur vos données : droit d’accès, droit de rectification, sous certaines conditions, droit à l’effacement (droit à l’oubli), droit d’opposition, droit à la limitation du traitement, droit à la portabilité. Vous pouvez également définir des directives relatives à la conservation, à l'effacement et à la communication de vos données à caractère personnel après votre décès. Pour exercer vos droits, merci d’adresser vos demandes à l’intention du DPO de Val Touraine Habitat soit par courrier au 7 rue de la Milletière 37080 Tours Cedex 2 ou par email à dpo@valtourainehabitat.fr en joignant un justificatif d’identité. Vous avez en outre le droit d’introduire une réclamation auprès de la CNIL.

    Ces terrains pourraient également vous plaire


  • 15.02.26

    NEUVY-LE-ROI > TERRAIN PRET A CONSTRUIRE !

    30 030 €

    EXCLUSIVITE Val Touraine Habitat ! Venez découvrir le lotissement " Beauregard" à Neuvy-Le-Roi. Les terrains à bâtir, vendus bornés...

    Voir l'annonce
  • 15.02.26

    NEUVY-LE-ROI > TERRAIN PRET A CONSTRUIRE !

    32 695 €

    EXCLUSIVITE Val Touraine Habitat ! Venez découvrir le lotissement " Beauregard" à Neuvy-Le-Roi. Les terrains à bâtir, vendus bornés...

    Voir l'annonce
  • 15.02.26

    NOTRE DAME D’OÉ – Terrain à bâtir prêt à construire

    100 700 €

    EXCLUSIVITE Val Touraine Habitat ! Aux portes de TOURS, entre ville et campagne, venez découvrir le Lotissement " La Borde 2" à NOTRE...

    Voir l'annonce