Surface

111 m2

Nombres de pièces

5

Prix

156 000 €

Caractéristiques


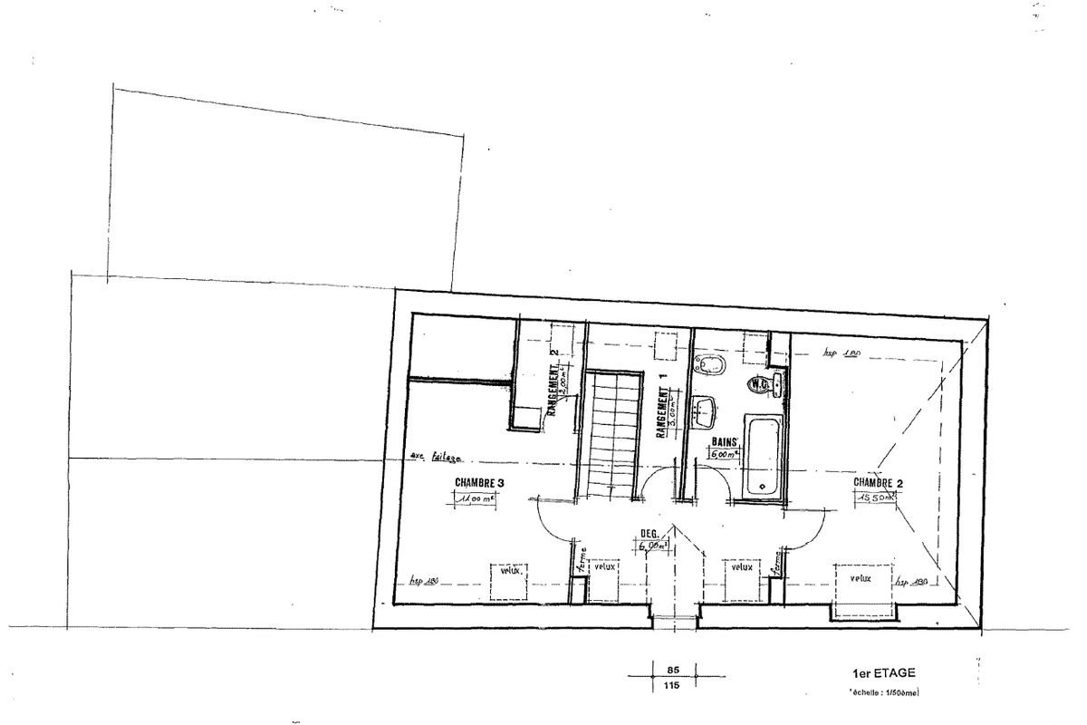
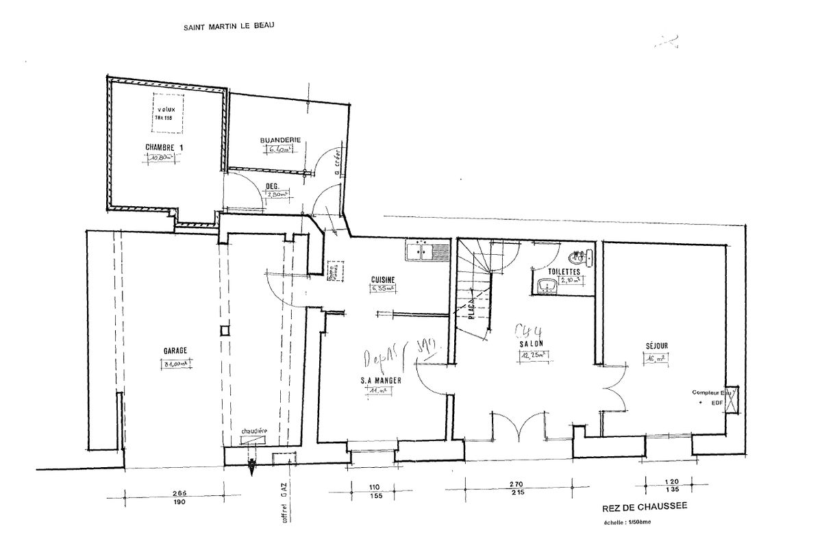
Val Touraine Habitat vous propose une maison de bourg T5 de 111 m² sur la commune de Saint Martin le Beau. Composition : Au rez-de-chaussée : entrée, séjour, salle à manger, cuisine, 1 chambre, un WC et un rangement A l'étage : une salle de bains avec WC, 2 chambres et un rangement. Un garage Réfection de la couverture et de la VMC en 2025. Classe énergétique : D – consommation : 182 kWh/m²/an Classe climatique : D - émission GES : 39kg CO2/m²/an Estimation des dépenses annuelles d'énergie : 1 870 € - 2 580 € (base 2021) Les informations sur les risques auxquels ce bien est exposé sont disponibles sur le site Géorisques : www.georisques.gouv.fr Visite sur rendez-vous le lundi au vendredi au 02 47 87 14 96 Offre d'achat à transmettre par mail : service.ventes@valtourainehabitat.fr Au plus tard le 14/05/2026 Vente soumise aux dispositions de l'article L443-11 du CCH

DPE *


Classe Energie

Classe GES

Contact par email

    Sujet

    Val Touraine Habitat collecte et traite des données personnelles vous concernant sur la base soit de l'exécution de ses intérêts légitimes pour la gestion des demandes issues du formulaire de contact, en tant que responsable de traitement. Les données sont à destination des équipes internes de Val Touraine Habitat. Vos demandes et les réponses apportées sont conservées 5 ans à compter du dernier contact. Conformément au Règlement (UE) 2016/679 relatif à la protection des données à caractère personnel, vous disposez des droits suivants sur vos données : droit d’accès, droit de rectification, sous certaines conditions, droit à l’effacement (droit à l’oubli), droit d’opposition, droit à la limitation du traitement, droit à la portabilité. Vous pouvez également définir des directives relatives à la conservation, à l'effacement et à la communication de vos données à caractère personnel après votre décès. Pour exercer vos droits, merci d’adresser vos demandes à l’intention du DPO de Val Touraine Habitat soit par courrier au 7 rue de la Milletière 37080 Tours Cedex 2 ou par email à dpo@valtourainehabitat.fr en joignant un justificatif d’identité. Vous avez en outre le droit d’introduire une réclamation auprès de la CNIL.

    Ces logements pourraient également vous plaire